Prinsenrijck

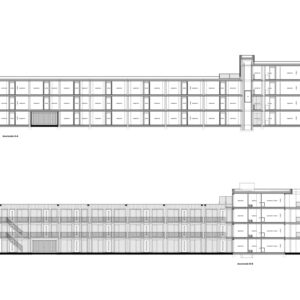
Op de hoek van de Vijverstraat en de Haverdijk in Prinsenbeek is in opdracht van Maas Jacobs Vastgoed dit appartementengebouw ontworpen. Het betreft een gebouw in 2 hoofdvolumes: aan de Haverdijk in 4 bouwlagen, aan de Vijverstraat een volume in 3 bouwlagen, meer passend bij de bestaande woningen in de straat.

De appartementen worden ontsloten via een centrale entree aan de straatzijde en een galerijontsluiting aan de achterzijde.

Alle woningen zijn in dit concept mooi georiënteerd op de straatzijde en op de zon.

De appartementen variëren in grootte en prijsklasse, maar zijn steeds voorzien van een volledig woonprogramma met twee slaapkamers en voldoen aan de eisen die passen bij een levensloopgeschikte woning.

 

Architectuur

Voor het architectuurbeeld hebben we gekozen voor een tijdloos en terughoudend beeld in licht metselwerk met donkere verdiepingshoge buitenkozijnen. In de gevel zijn horizontale banden aangebracht in staand metselwerk in een iets afwijkende kleursortering. Hierdoor ontstaat een afwisselend gevelbeeld van verticale opening en horizontale gevelbelijning.

Met dit ontwerp wordt een bijzondere plek nabij het centrum van Prinsenbeek opnieuw ingevuld met een gebouw wat uitstekend harmonieert met de bestaande omgeving: tegelijkertijd kleinschalig, vriendelijk en tijdloos.

  • Plaats
    Prinsenbeek
  • Programma
    36 appartementen
  • Opdrachtgever
    Maas Jacobs
Shopping Basket